For Sale..
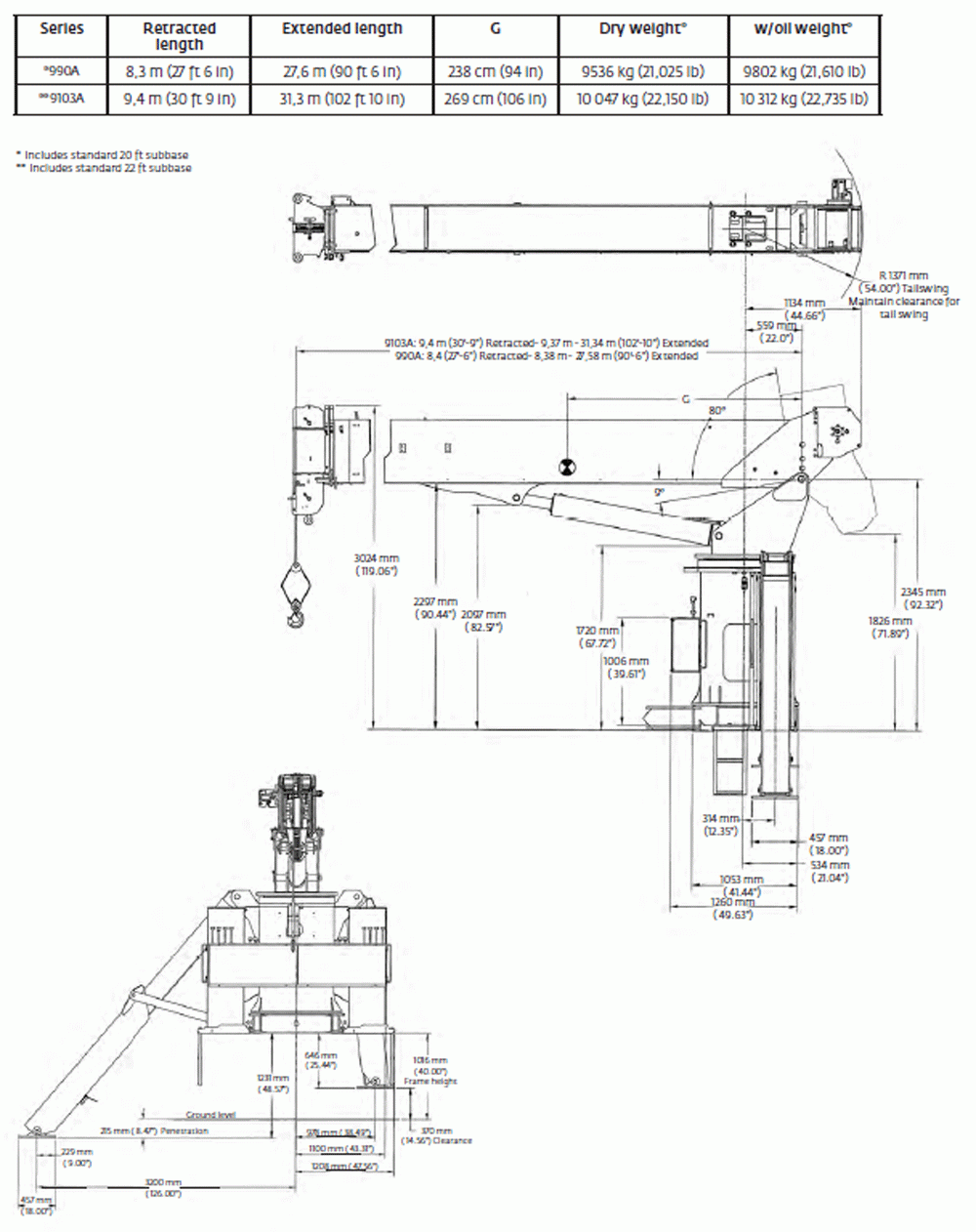
26 Ton National 9103A
Boom Truck
Boom Truck
Unit: 108WR
Next Step..
For more Information:
Call
414-764-9200or Click Below!
Specifications











