
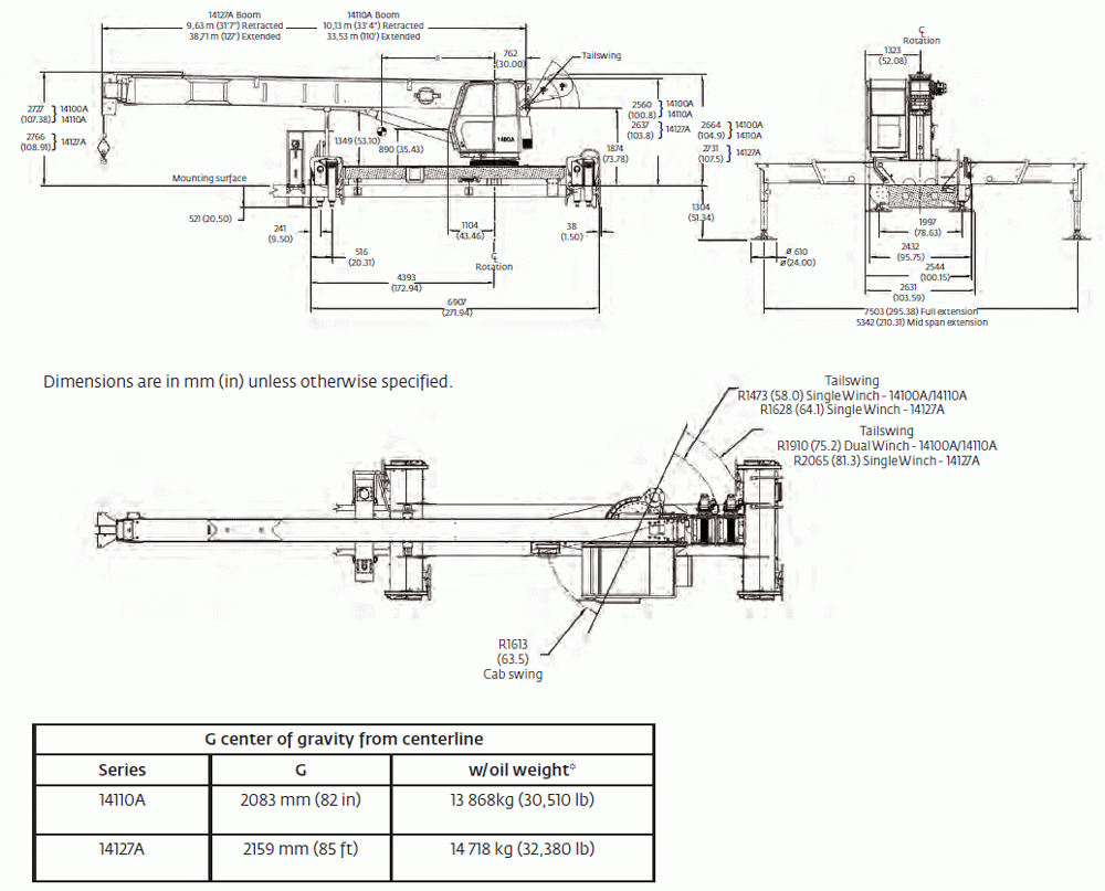
Model Information
| Model | 14110A |
| Capacity | 33 Ton |
| Boom Length | 4 SECTION 33'4" - 110' |
| Tip Height | 171' |
Download / Print (PDF)
Warning: All load, rating, and capacity charts / images shown on this site are for general reference only! Always consult with your equipment manufacturer reguarding rated load capcity of your crane prior to operation.






