
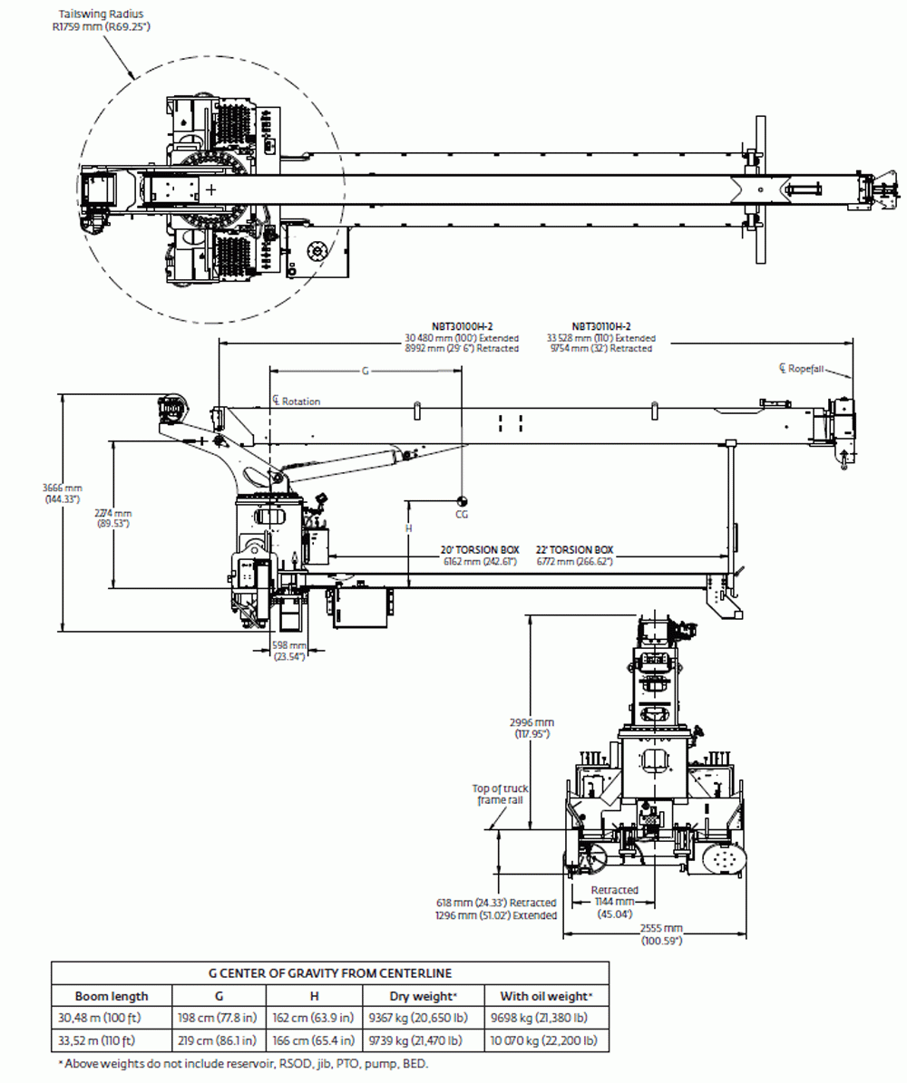
Model Information
| Model | NBT30100H-2 |
| Capacity | 30 Ton |
| Boom Length | 4-SECTION 29' - 100' |
| Tip Height | 153' |
Download / Print (PDF)
Warning: All load, rating, and capacity charts / images shown on this site are for general reference only! Always consult with your equipment manufacturer reguarding rated load capcity of your crane prior to operation.







